Spantgatan 14 D
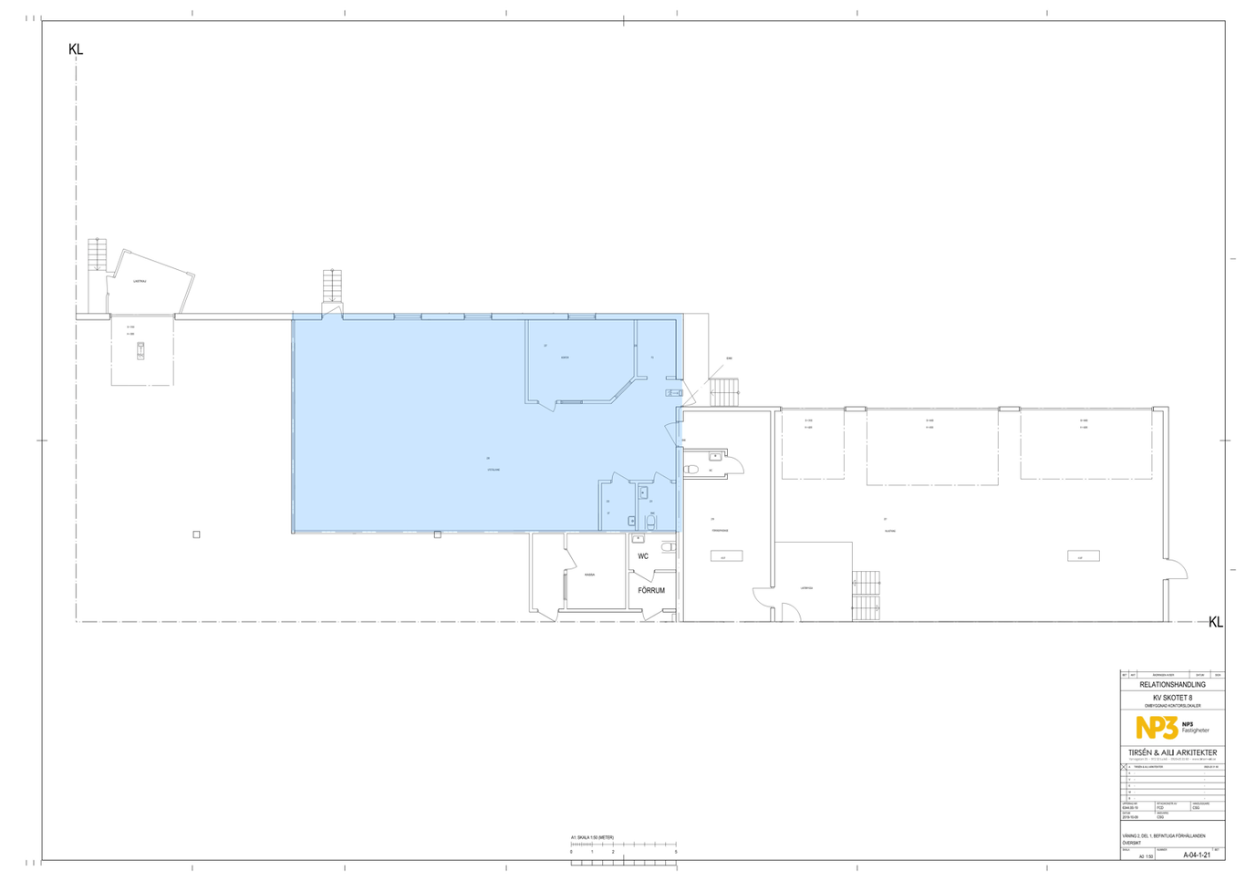
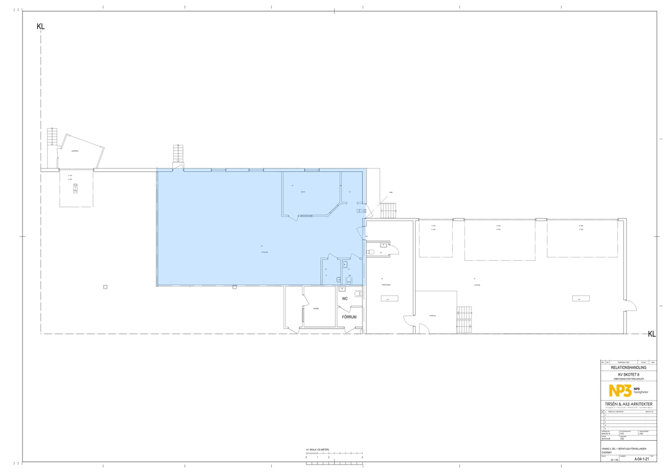
Flexibel lokal för kontor eller lager
Lokalen är ljus och öppen med god takhöjd och passar utmärkt som kontor, lättare lager, verkstad, showroom eller kombinationslokal.
Här finns kontorsrum, WC och pausutrymme, samt en större öppen yta som kan anpassas efter behov. Lokalen har egen entré på baksidan av byggnaden.
Fastighetsinformation
Kommunikationer
Goda parkeringsmöjligheter direkt utanför lokalen.
Omgivning
Fastigheten ligger i populära Notviksstan. Härifrån har du snabb tillgång till Bodenvägen (väg 97), E4:an, Luleå centrum och flygplatsen. I området finns flera etablerade företag inom handel, industri och service.



