Gällivare 15:336
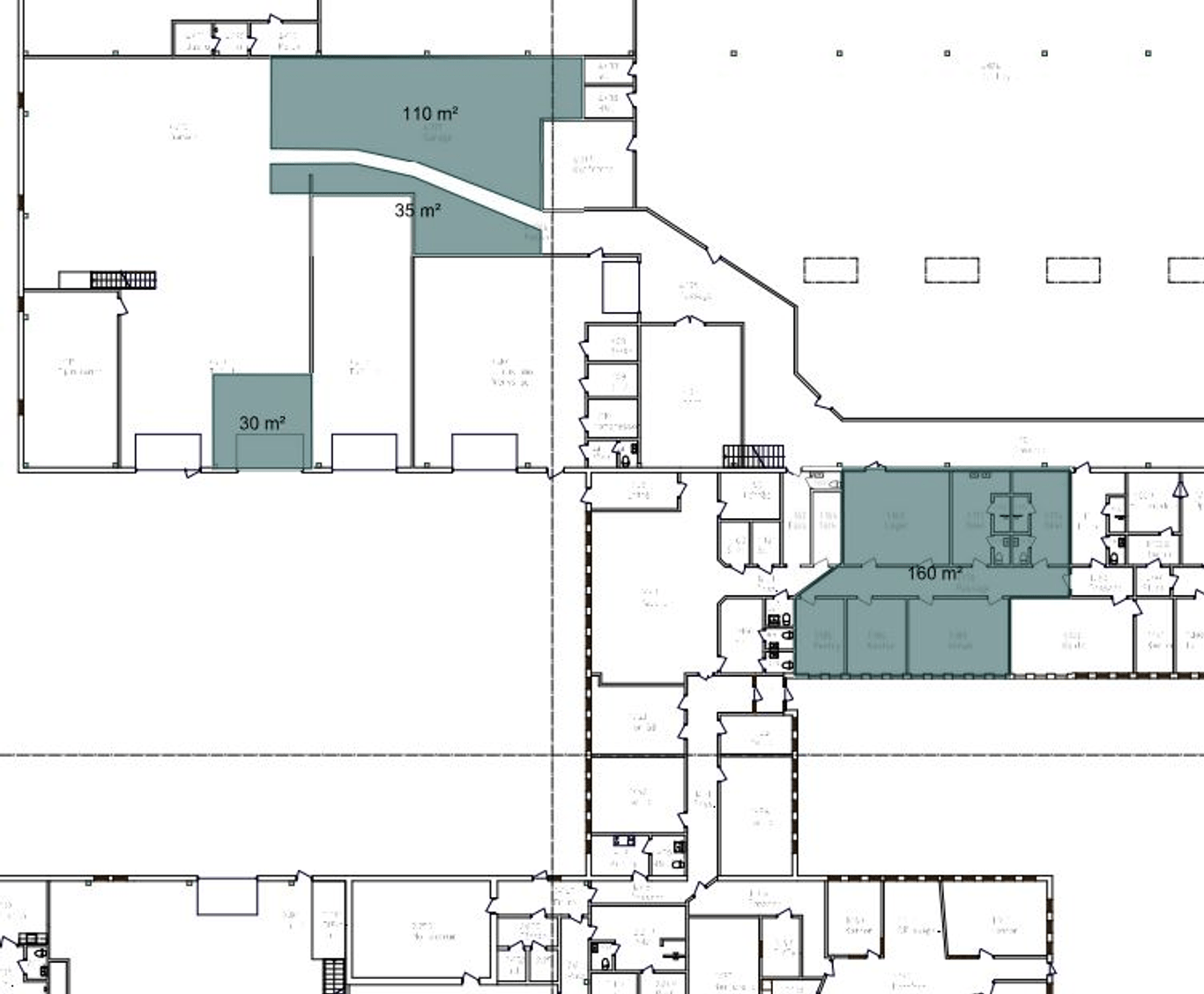
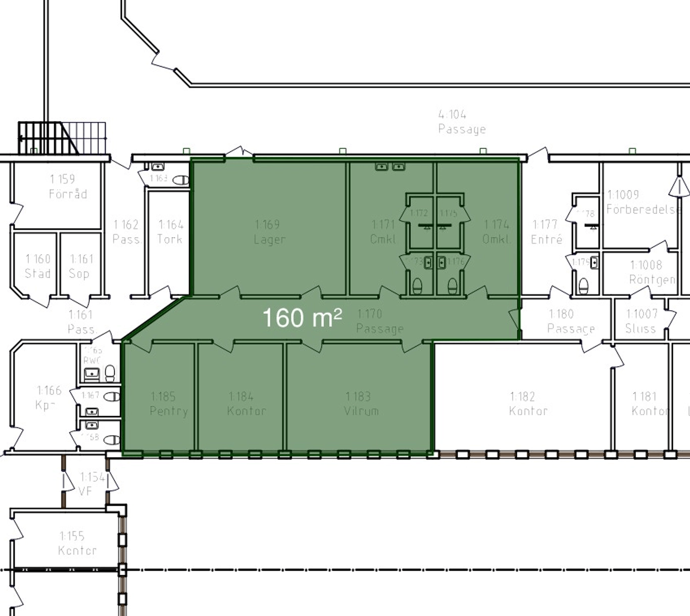
Lokal med kontor, dubbla omklädningsrum, generösa garage- och lagerytor
Nu finns möjligheten att hyra en lokal lämplig för kontor med tillhörande omklädningsrum, lager- och garageytor. Lokalen kan anpassas utifrån verksamhetens behov. Det finns möjlighet att arrendera utomhusytor och parkeringsplatser i nära anslutning till lokalen.
Kommun
Gällivare
Total area
160 m² - 335 m²
Fastighetsnamn
Gällivare 15:336
Adress
Energiplan 3
Anmäl intresseFastighetsinformation
Omgivning
Övriga hyresgäster i byggnaden är Lantmäteriet, Ahlsell, Autotech, Fastighetssnabben, Sveaskog m.fl.
Service
Fastigheten är belägen ca 800 meter från Malmhedens handels- och industriområde där ni hittar matvarutbutiker, bilaffär, maskinuthyrning m.m.





