Hammaren 1
Butikslokal på ett attraktivt läge med omgående tillträde
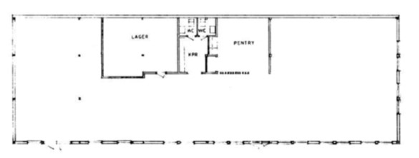
Lokalen består av en fristående byggnad med öppna ytor och består utav butiksyta, lager och personalutrymmen. Lokalen kan anpassas efter hyresgästens önskemål och behov, det finns flertalet kund och personalparkeringar. Goda skyltningsmöjligheter mot Gjuterigatan. Lokalen är belägen vid en av infarterna till Lambergets handelsområde som utgörs av en varierande blandning av olika företag såsom industrier, verkstäder, butiker och restauranger. Närheten till Riksväg 236 möjliggör snabb och smidig tillgång till området. Vägen används även av boenden i områdena Kroppkärr och Norrstrand. Med mindre än 2km till E18 tar man sig fort till området om man åker från annan ort.
Kommun
Karlstad
Total area
201 m²
Fastighetsnamn
Hammaren 1
Adress
Gjuterigatan 1
Tillträde
2023-11-01
Anmäl intresse





