Johannedalsvägen 65
Kontor och personalutrymmen i fint skick
Fräscha kontor och personalutrymmen som är klara för inflyttning direkt. Genom mindre ombyggnationer går det att kombinera öppna kontorslandskap med kontor och tysta rum. NP3 har även lokaler för lager/logistik mm lediga inom industriområdet.
Kommun
Sundsvall
Total area
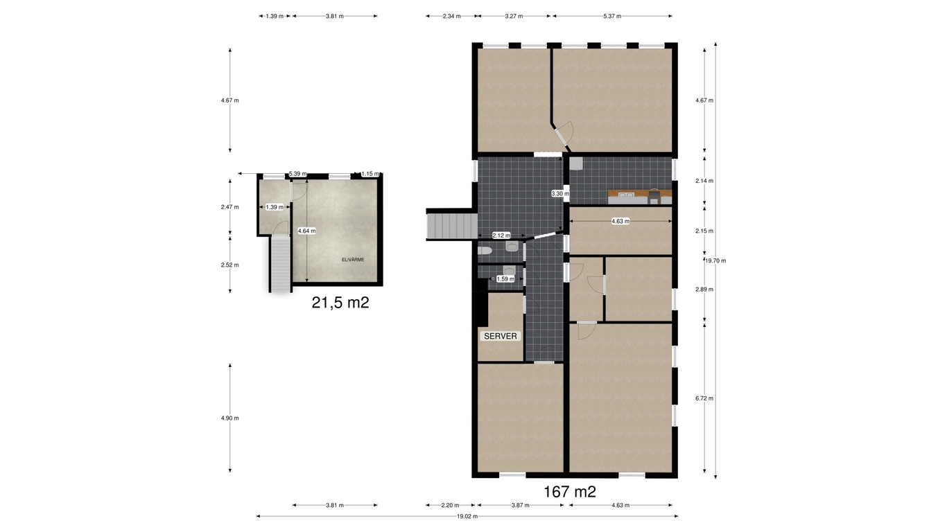
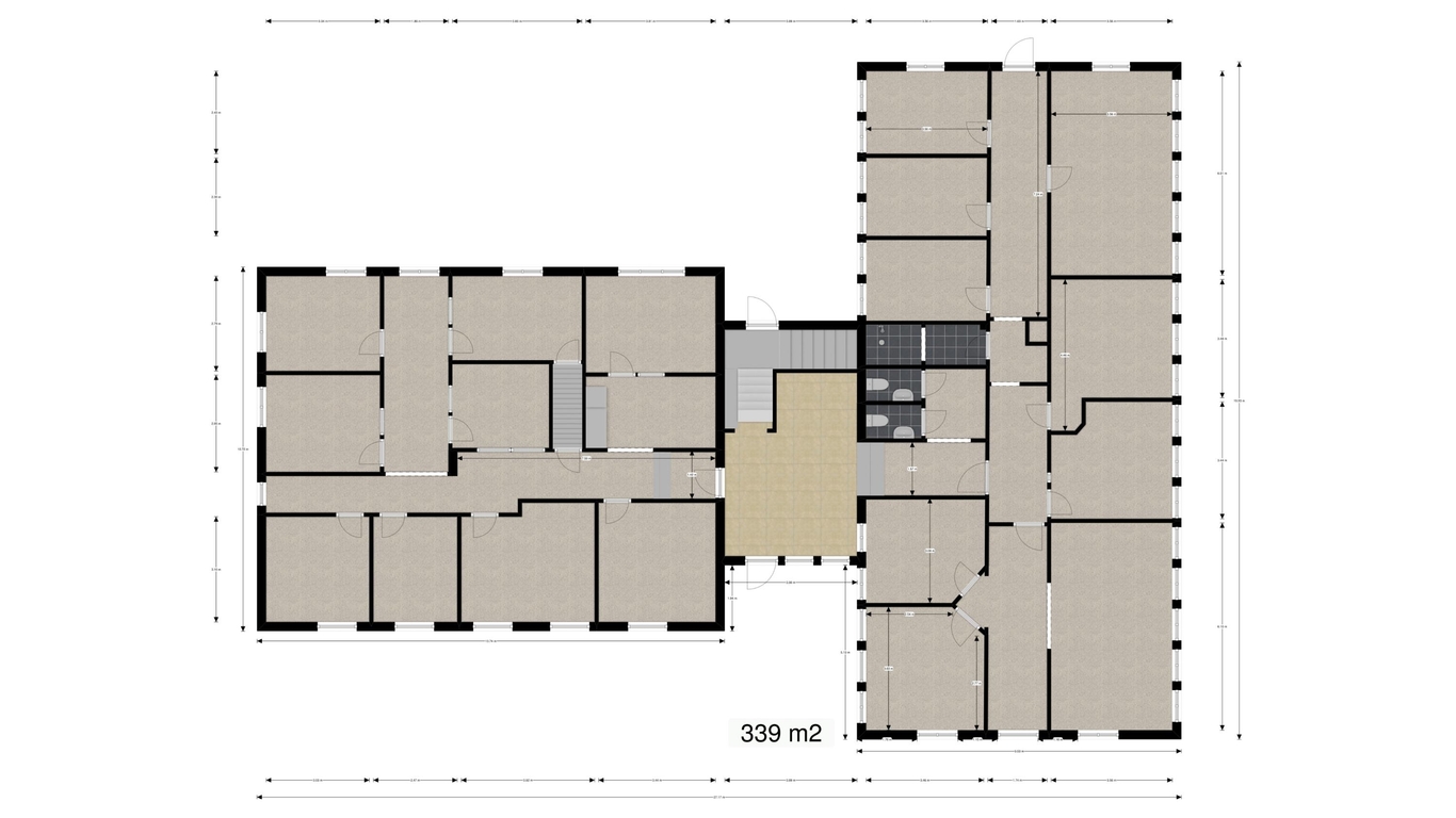
150 m² - 506 m²
Fastighetsnamn
Huggsta 1:160 By 41
Adress
Johannedalsvägen 65
Anmäl intresseFastighetsinformation
Planlösning
Se våra ritningar
Kommunikationer
Bra logistikläge. Buss direkt utanför området.
Omgivning
Johannedals industriområde med mänger av företag inom lager/logistk, tillverkning, service, återvinning, mm.
Service
Motorvärmarplatser i direkt anslutning till fastigheten
Övrigt
Johannedals Industriområde är beläget ca 5 minuter från Birsta och omfattar ca 15 000 kvm lokalytor. Det finns massor av företag inom industriområdet som jobbar med logistik, lättindustri, tillverkning, lager mm. Området är inhägnat. OBS! Lokalen är frivilligt momsregistrerad och kan endast hyras ut till momspliktig hyresgäst!








