Linjeförmannen 7
Kontor och personalutrymmen med lager i Bosvedjan Centrum. Möjlighet att sätta in mindre port
Mångsidig lokal på bottenvåningen i Bosvedjan Centrum. Det går att kombinera kontor med lager, eller en butik. En mindre port går att installera intill entrédörren.
Kommun
Sundsvall
Total area
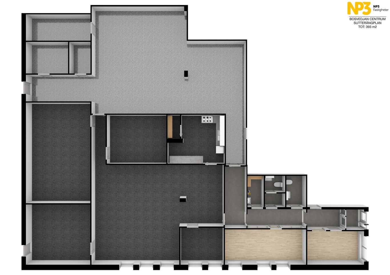
393 m²
Fastighetsnamn
Linjeförmannen 7
Adress
Bäckebovägen 12
Anmäl intresseFastighetsinformation
Planlösning
Om intresse finns så går det att ta bort innerväggarna och skapa stora öppna ytor.
Kommunikationer
Gott om p-platser i direkt anslutning till fastigheten. Busshållplats vid entré.
Omgivning
Belägen mellan Sundsvalls centrum och Birsta handelsområde.
Service
Två restauranger finns i fastigheten.
Övrigt
Fiber finns i fastigheten





