Linjeförmannen 7
Kontorslokaler i Bosvedjan centrum
Hyresvärden anpassar lokalerna efter önskemål. Ljusa och fina ytor som passar utmärkt till öppet kontorslandskap kombinerat med tysta rum. Kontakta oss för ett anpassat förslag!
Kommun
Sundsvall
Total area
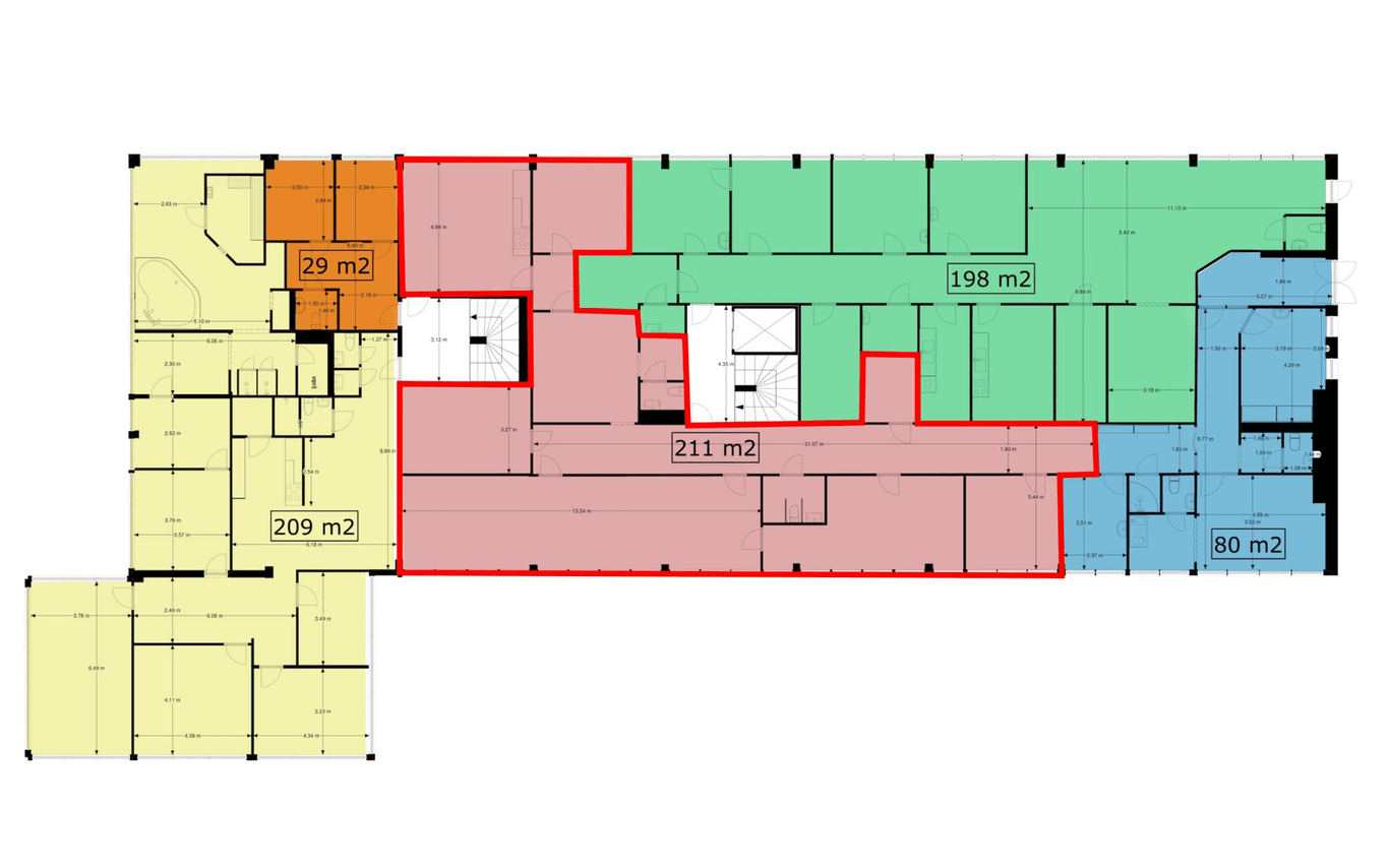
211 m²
Fastighetsnamn
Linjeförmannen 7
Adress
Bäckebovägen 12
Anmäl intresseFastighetsinformation
Planlösning
Se ritning. Lokalen ligger på övervåningen med tillgång till hiss och trappor.
Kommunikationer
Gott om p-platser i direkt anslutning till fastigheten. Busshållplats vid entré.
Omgivning
Bosvedjan - mellan centrum och Birsta handelsområde.
Service
Flera restauranger i området.







