Notviken 4:51
Lagerlokal i bra läge
Lagerlokal med personalytor på övre plan. Lokalen ligger på ett bra läge i Notsviksstan. Goda parkeringsmöjligheter finns, både för personbilar och lastbilar. Möjlighet finns att anpassa lokalen efter verksamhetens behov.
Kommun
Luleå
Total area
310 m² - 622 m²
Fastighetsnamn
Notviken 4:51
Adress
Banvägen 19
Anmäl intresseFastighetsinformation
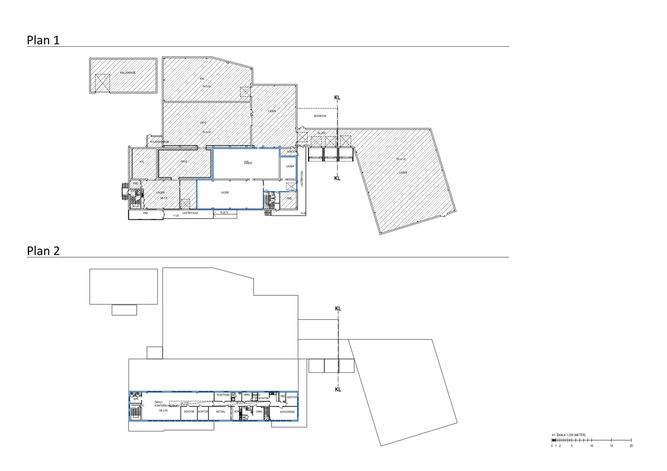
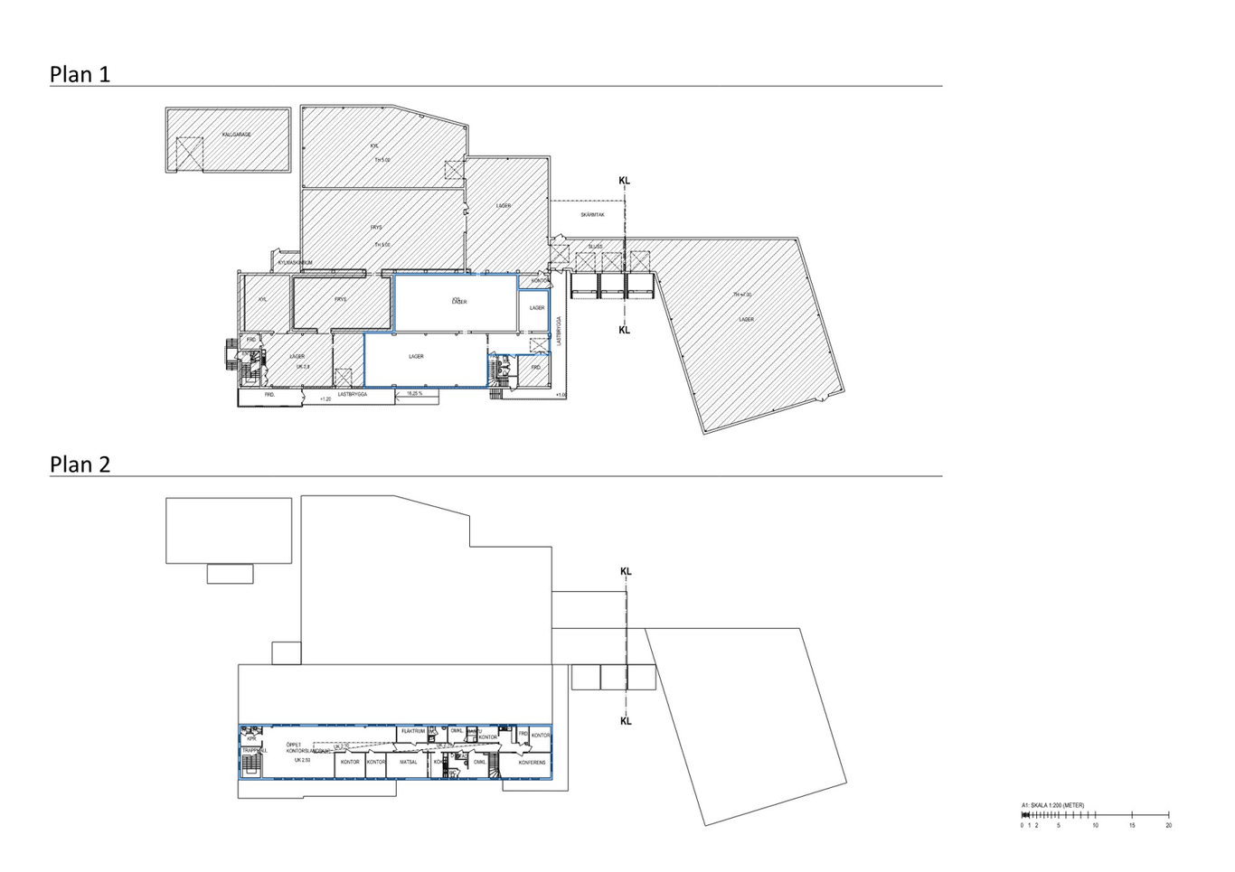
Planlösning
Lager på bottenplan, ca 312 kvm. Övre plan har kontor, fikarum och omklädningsrum med bastu, ca 310 kvm.
Kommunikationer
Bra med bussförbindelser med en närliggande hållplats efter Bodenvägen. Notviken har tåghållplats. Luleå Airport ligger 15 km från fastigheten.

