Skotet 2
Välplanerad kontorslokal i populära Notviksstan
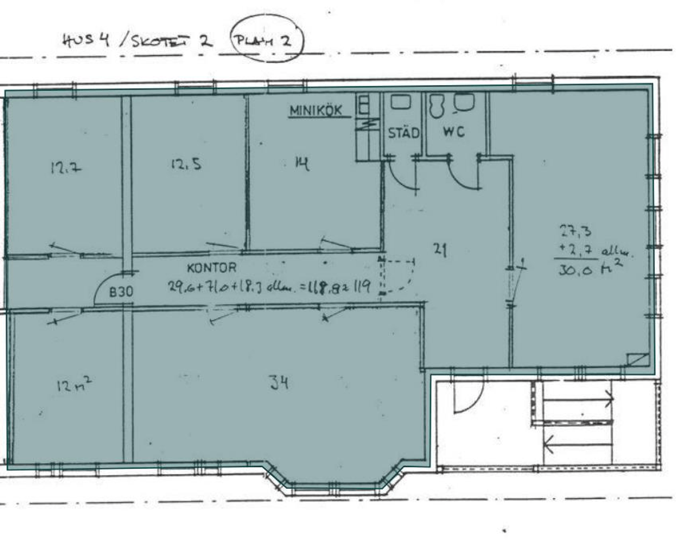
Här finner ni en ljus och välplanerad kontorslokal på plan 2. Lokalen har fyra kontorsrum, konferensrum, lunchrum, wc, städ och entréhall. Egen ingång via utvändig trapp. Hör gärna av er om ni vill ha mer information eller en visning av lokalerna.
Fastighetsinformation
Kommunikationer
Bra med bussförbindelser med en närliggande hållplats efter Bodenvägen. Notviken har även en tåghållplats.
Omgivning
Notviksstan är ett lättillgängligt handels- och verksamhetsområde i Luleå, med goda kommunikationer och närhet till både centrum, Bodenvägen och E4:an. Här finns flera etablerade företag och butiker, vilket gör området attraktivt för både kunder och personal.




