Storseglet 7
Lager/garage för företag med omgående inflyttning.
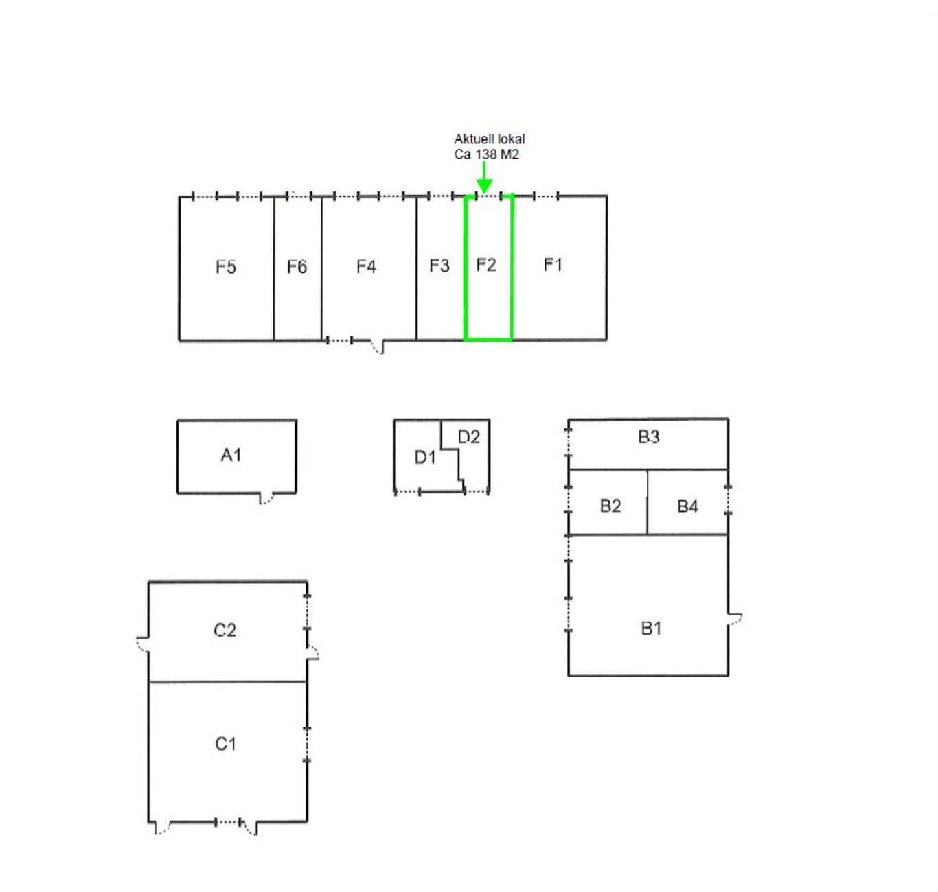
Lokalens totala yta är ca 138 kvadratmeter med en rejäl takhöjd på ca 4 meter, är utrustad med 1 stor port, pentry, personalutrymme och wc, i övrigt så finns det golvbrunn och 3 fas uttag. Vi anpassar lokalen enligt ert behov. Närhet till flertalet lunchrestauranger och till Västerås Saluhall. Hör av er för mer information och om ni vill ha en visning av lokalen.
Kommun
Västerås
Total area
138 m²
Fastighetsnamn
Storseglet 7
Adress
Slakterigatan 2
Tillträde
2023-01-01
Anmäl intresse


