Utmeland 89:256
Ledig yta om 315 kvm på Örjastäppan
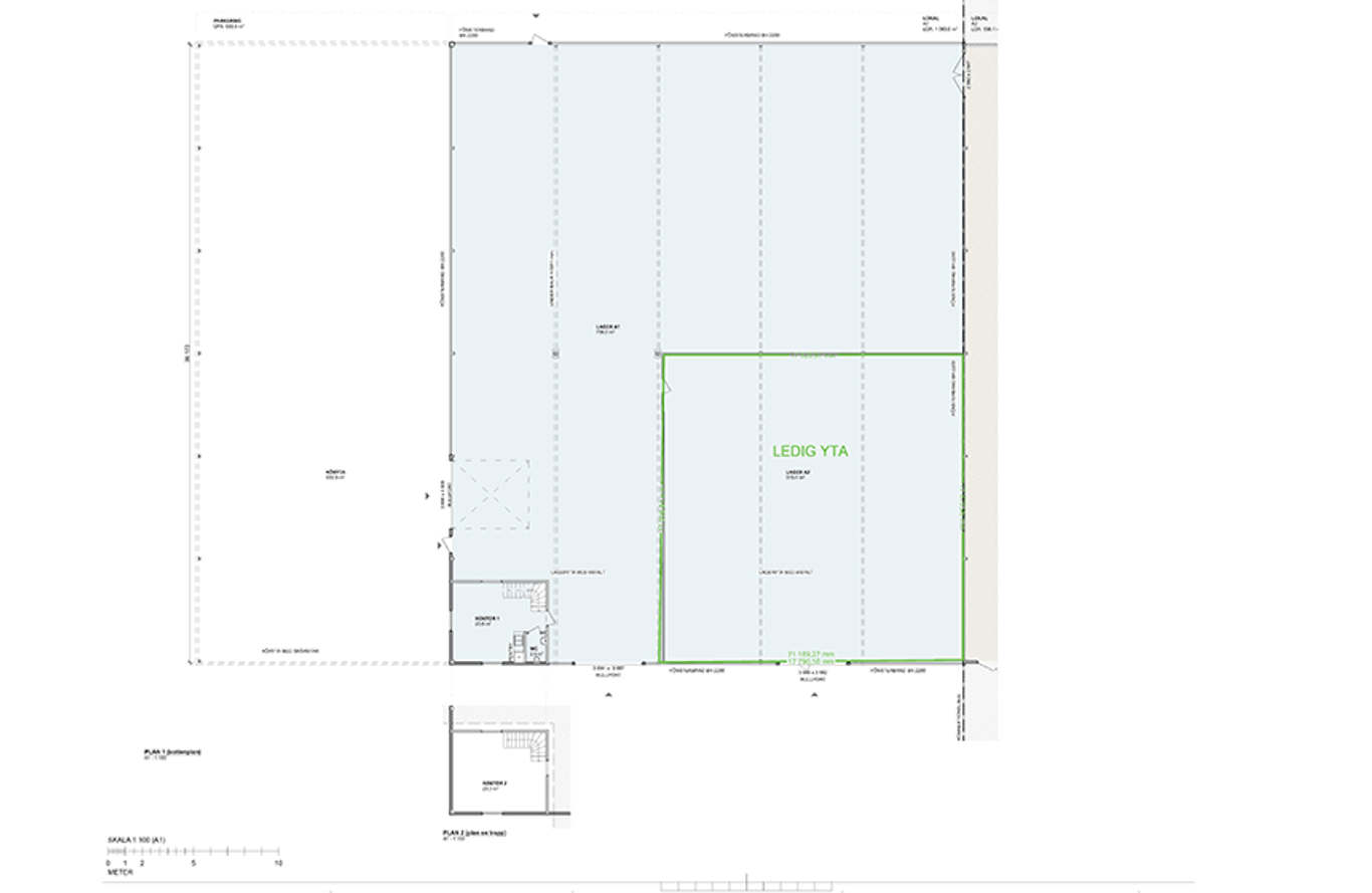
Vi har nu en ledig lokal om 315 kvm som passar perfekt för lager/logistik. Lagerytan är belägen på markplan och har 5 meter i takhöjd samt en port med måtten 4 x 3,6 meter för smidig in- och utlastning. Byggnaden ligger på inhägnat område - innanför grindarna finns möjlighet till uppställningsyta samt parkering. Se planlösning för mer information. Fastigheten är belägen på Örjastäppans industriområde som ligger utmed E45an. Endast 5 minuter till Mora centrum. Välkommen att kontakta oss för frågor och visning! [email protected], 076-166 88 41



