Gärdevägen 3
Rymliga och flexibla kontorslokaler i Gärde!
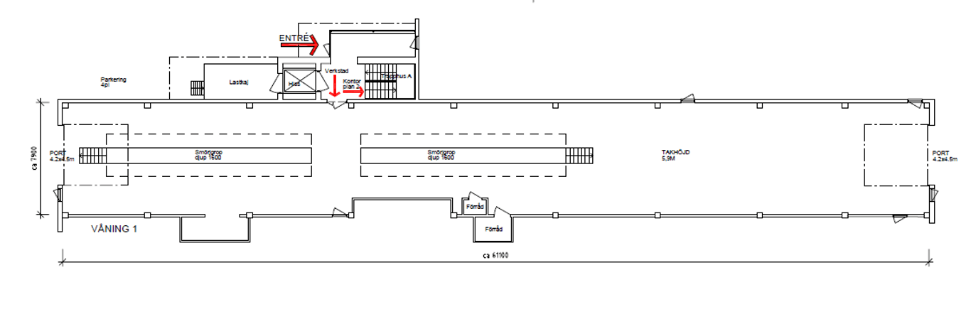
Nu finns möjlighet att hyra kontor om 646 kvm på våningsplan 2 i Gärde, Sundsvall. Lokalen har ett fantastiskt skyltläge och kan anpassas efter din verksamhets behov. Perfekt för dig som vill ha en lättillgänglig arbetsplats.
Till lokalen finns också möjlighet att hyra ett garage som nås via en interntrappa.
Kontakta oss för mer information och visning!
Kommun
Sundsvall
Total area
646 m² - 1 094 m²
Fastighetsnamn
Vandringsmannen 1
Adress
Gärdevägen 3
Anmäl intresseFastighetsinformation
Planlösning
Kommunikationer
Allmänna kommunikationer finns i form av lokal busstrafik. Större trafikleder (E4) finns på cirka en kilometers avstånd. Ca 4 km till Sundsvall City och tågstation. Till Sundsvall/Timrå Airport är det ca 1,3 mil.
Omgivning
Större företag i området är bland annat Enerco, Truckwash och Ocab.
Service
Service finns närmast i Bydalens Centrum. Till Birsta Handelsområde är det ca 3.5 km.
Övrigt
Gott om parkeringsplatser. Bra skyltläge vid E4. Hiss finns i fastigheten.



