Vävskeden 6
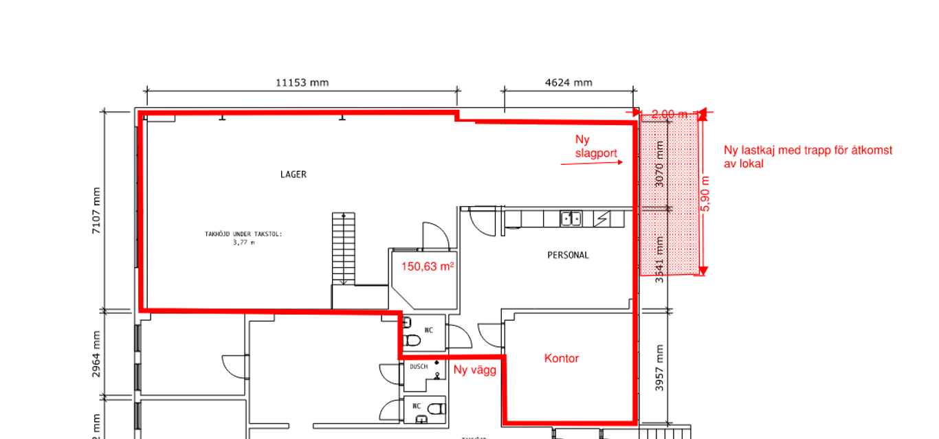
Lagerlokal med lastkaj
På Norra vägen 34 finns nu en lokal om 151 kvm med lastkaj ledig. Lokalen består av en lagerdel, ett kontor samt personalytor. Ytterligare kontorsrum finns att hyra till.
Fastighetsinformation
Service
Flertalet livsmedelsbutiker och lunchrestauranger i närområdet.
Övrigt
Fastigheten är belägen i Bydalen med närhet till både Sundsvalls centrum och Birsta. I anslutning till lokalen finns tillgång till P-platser. För mer information om lokalerna eller visning av dem, välkommen att höra av er till oss.




