Vuoskonjärvivägen 17
Industrilokal på Gällivare företagscentrum
Industrilokal blir ledig för uthyrning på Gällivare företagscentrum.
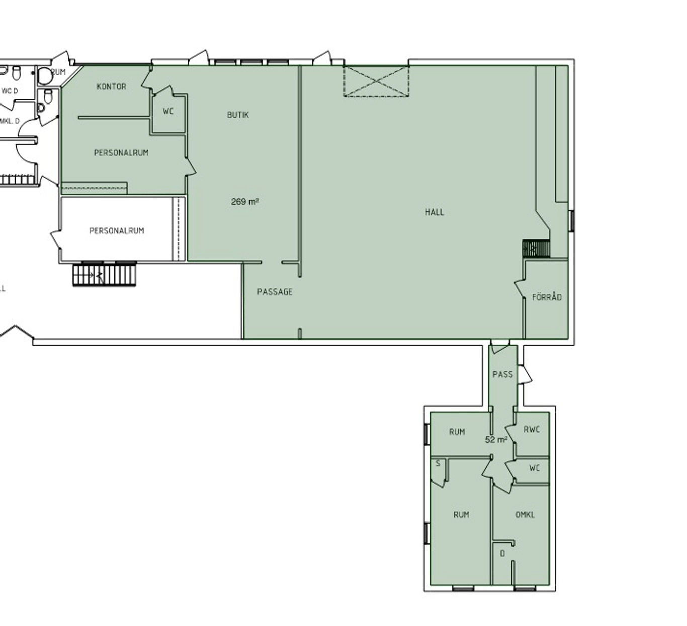
Lokalen består av en industrihall, förrådsytor, butiksyta, kontorsrum, wc och personalytor. Möjlighet finns till anpassning av lokalen.
I anslutning till lokalen finns parkeringsplatser och möjlighet till markarrende.
Välkommen att kontakta oss för mer information och visning!
Kommun
Gällivare
Total area
269 m² - 321 m²
Fastighetsnamn
Gällivare 12:334 (Hus 20)
Adress
Vuoskonjärvivägen 17
Anmäl intresseFastighetsinformation
Planlösning
Omgivning
På Gällivare företagscentrum blir ni granne med Konecranes, Granitor, PostNord, Metso m.fl.



