Kabelvägen 5
Praktisk industrilokal/lager med möjlighet att växa
Lokalen är belägen inom Timrå industriområde och har ett bra logistikläge. Kontor och personalutrymmen finns tillgängliga eller kan tillskapas efter behov,
Det finns två st portar med måtten 4 x 4,5 (BxH). Kontakta oss för mer information och visning!
Kommun
Timrå
Total area
500 m² - 642 m²
Fastighetsnamn
Vivstamon 1:27
Adress
Kabelvägen 5
Anmäl intresseFastighetsinformation
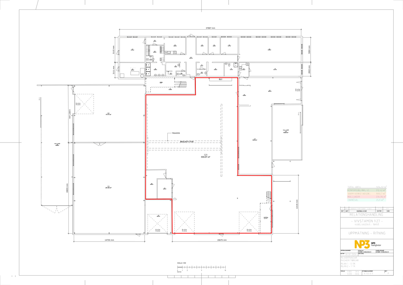
Planlösning
Se ritning. Se även förslag på kontor och personalutrymmen.
Kommunikationer
Bra läge med närhet till E4, Birsta (E14) samt Torsboda.
Omgivning
Torsboda, Timrå Industriområde
Service
Lunchrestauranger finns inom närområdet
Övrigt
Fiber finns i fastigheten






