Vandringsmannen 3

Member for

5 years 2 months
Submitted by inv.adminuser on
300.00 300.00 Sundsvall Gärdevägen 7 A-D 856 50 Nu finns möjlighet att hyra en fin lagerlokal med personalutrymmen i Gärde.

Välkommen att kontakta oss för mer information samt visning av lokalen. Allmänna kommunikationer finns i form av lokal busstrafik. Större trafikleder (E4) ligger i anslutning till området. Närhet till både Birsta och Sundsvall City. Sundsvall/Timrå Airport nås med restid på ca 15 min och Sundsvall centralstation ca 8 min. Service finns närmast i Bydalens Centrum. Till Birsta Handelsområde är det ca 3.5 km. Omgivningen utgörs huvudsakligen av enklare industrier och kontor. 367901 IMG_4076.png IMG_4060.png IMG_4061.png IMG_4067.png IMG_4068.png IMG_2320.png Industri/Verkstad Kontor Övrigt Butik Lager/Logistik Fiber finns i fastigheten.
Parkeringar finns i området. Matilda Rydstedt Affärsansvarig 060-7770316 [email protected] Lokalen består av ett höglager med takhöjd om ca 6,3 m samt en lägre butiksyta/lagerdel. Se bifogad ritning.
Entresolplanet består av 3 st kontorsrum med plats för 4 st arbetsplatser, förråd samt fikarum.

Port: 3,7 * 3,9 [H*B] Fin lagerlokal med personalutrymmen Matilda Rydstedt

Gällivare 12:334 (Hus 40)

Member for

5 years 2 months
Submitted by inv.adminuser on
252.00 402.00 Gällivare Vuoskojärvivägen 11 982 38 Trevliga utbildnings-/kontorslokaler på Gällivare företagscentrum. Gott om ljusinsläpp och generösa öppna ytor.

Lokalen har ett stort fika-/lunchrum, utbildningssal/kontorslandskap samt mötes- och konferensrum. Finns möjlighet att hyra kontorsrum, utbildningssal, förrådsytor samt dusch/omklädning om så önskas.

Lokalen ligger bra placerad med gott om parkeringsplatser i direkt anslutning till lokalen. I lokalen finns komfortkyla vilket ger ett bra inomhusklimat, även under varma sommardagar.

Hör gärna av er om ni har några frågor eller vill boka en visning av lokalen 366801 Lokal Hus 40 bild 1.png Lokal Hus 40 bild 7.png Lokal Hus 40 bild 2.png Lokal Hus 40 bild 3.png Lokal Hus 40 bild 4.png Lokal Hus 40 bild 5.png Lokal Hus 40 bild 6.png Kontor Övrigt Övriga hyresgäster i huset är ABB, Atea och Littak Consult Per Jatko Affärsansvarig 0920-230 777 [email protected] Se bifogad planlösning över plan 2 i byggnaden Ljusa och trivsamma utbildnings-/kontorslokaler Per Jatko

Öna 394:12

Member for

5 years 2 months
Submitted by inv.adminuser on
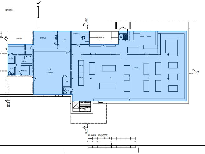
339.00 339.00 Mora Brudtallsvägen 14 792 32 Bra planerad verkstads/lagerlokal med två portar för möjlighet till genomfart och enkel i/urlastning.
Flera kontor, matrum, pentry, wc samt omklädningsrum.
Parkering finns i anslutning till lokalen.
Se bifogad planlösning för mer information om lokalens utformning.

Välkommen att höra av Er för mer information och visning! Fastigheten ligger strategiskt bra till vid Riksväg 70, cirka 1 km fån Mora cenrum.
Här hyr och verkar i dagsläget hyregäster som Vattenfall, Mora Siljan Ventilation, Beans in Cup m.fl. 365501 Öna 394.12_web_010.png Öna 394.png Öna 394.png IMG_8517.png Öna 394.png Öna 394.12_web_005.png Industri/Verkstad Butik Lager/Logistik Jennifer Alm Vikström Affärsansvarig 0250-10 171 [email protected] 339 kvm välplanerad lokal med två portar Jennifer Alm Vikström

Linjeförmannen 7

Member for

5 years 2 months
Submitted by inv.adminuser on
165.00 238.00 Sundsvall Bäckebovägen 12 856 53 Fräscha inflyttningsklara lokaler med möjlighet att växa. Kontakta oss för ett anpassat förslag eller boka en visning! Gott om p-platser i direkt anslutning till fastigheten. Busshållplats vid entré. Flera restauranger i området. Bosvedjan - mellan centrum och Birsta handelsområde. 366701 IMG_0458.png IMG_0462.png IMG_0460.png IMG_0461.png IMG_0470.png IMG_0464.png IMG_0459.png IMG_0468.png IMG_0463.png IMG_0467.png Kontor Fiber finns i fastigheten. Håkan Andersson Affärsansvarig 060-777 03 04 [email protected] Se ritning. Lokalen kan minskas eller utökas med ytterligare 29 kvm (orangefärgad på ritning) Fräscha kontor och personalutrymmen på övervåningen Håkan Andersson

Höken 3

Member for

5 years 2 months
Submitted by inv.adminuser on
500.00 500.00 Boden Sturegatan 14 961 33 Öppen och anpassningsbar lokal en halv trappa ner. Lokalen nyttjas idag som butik. Personalutrymmen med omklädning och bastu. Varuhiss och personhiss finns.
Goda parkeringsmöjligheter både för personal och kunder. Fastigheten ligger ca 200 m från Lulevägen med goda bussförbindelser. Grannar till fastigheten är bl.a. Bilbolaget, Besikta och EM Home. 366201 Höken 3_Exteriör 1.png Höken 3_Boden_web Höken 3_Interiör 1.png Höken 3_Planlösning_1.png Övrigt Butik Henrik Forsberg Affärsansvarig 0920-450 777 [email protected] Planlösningen i annonsen visar hur lokalen ser ut idag men vi anpassar gärna efter ert behov. Anpassningsbar lokal i bra läge Henrik Forsberg
Subscribe to