Fältjägaren 1

Member for

5 years 2 months
Submitted by inv.adminuser on
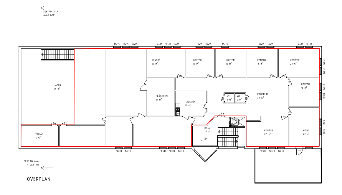
170.00 711.00 Östersund Kanslihusgränd 2 831 32 Nu finns chansen att hyra moderna och fina lokaler på Kanslihuset på Stadsdel Norr.

Lokalen omfattar två våningsplan beläget på första och andra våningen. Egen ingång från trapphus med hiss. Lokalen har en mycket unik karaktär utifrån fastighetens historia. Här har ni som ny hyresgäst möjlighet att hyra båda våningsplanen alternativt går lokalen att dela upp till några mindre lokaler.

Hör av er om ni vill ha mer information eller en visning av lokalen. Fastigheten har god kommunikation i form av bussar som går strax utanför entrén, mot Fältjägargränd.
Övriga stadsbussar samt landsortsbussar trafikerar Kyrkgatan ett kvarter väster om fastigheten. På området finns möjlighet att äta lunch på Restaurang HEAT. Om man önskar träna så finns två anläggningar inom gångavstånd, Friskis & Svettis samt STC.

Fyra kvarter från fastigheten börjar Östersunds gågata med all tänkbar närservice. Centralt men ändå lättillgängligt läge på det mycket expansiva Stadsdel Norr i Östersund. Det tidigare militärområdet har under senare år förändrats till en mycket aktiv stadsdel med såväl ett stort antal bostäder som kontorsverksamhet och skolor av olika slag. Inom stadsdelen finns även en volymhandelsdel med bl a Mekonomen, Däckia samt ICA Maxi. Östersunds fotbollsarena samt ishall/gymnastikhall är också belägna inom området. I direkt anslutning till Stadsdel Norr ligger Östersunds skidstadion med många mil preparerade spår alternativt stigar för rekreation. 393901 Fältjägaren 1.png Bild Stadsdel Norr.png Kontor I fastighetens två översta våningar hyr företaget Engcon.

I närområdet finns flertalet markparkeringsplatser med motorvärmaruttag samt elbilsplatser. För dessa löses parkering per timme, möjlighet till månadskort eller årskort finns. Erbjuds till hyresgäster i omkringliggande fastigheter på området. Marie Karlstedt Affärsansvarig 063-141485 [email protected] Lokalen går att anpassa utifrån verksamhetens behov. Dock finns vissa begränsningar till lokalens konstruktion som måste tas i beaktning. Modern kontorslokal i perfekt läge på Stadsdel Norr Marie Karlstedt

Skeppsklockan 1

Member for

5 years 2 months
Submitted by inv.adminuser on
295.00 448.00 Västerås Gustavsviksgatan 10 724 65 Välkommen till dessa flexibla och välplanerade lokaler om 295-448m² på Gustavsviksgatan 10 i Västerås.
Lokalen erbjuder en genomtänkt kombination av kontorsytor och lager med möjlighet att anpassa storleken på lokalen efter verksamhetens behov. Perfekt för företag som söker både funktion och komfort i vardagen. 250m till Busskommunikation
1,9km till Västerås Centralstation 240m till Member 24 samt Lögabadet. Ett av Västerås största gym/träningsanläggning. 393701 Skärmbild (557).png Skärmbild (549).png Skärmbild (554).png Skärmbild (553).png Skärmbild (552).png Skärmbild (550).png Skärmbild (551).png Skärmbild (547).png Skärmbild (548).png Skärmbild (555).png Kontor Övrigt Lager/Logistik Daniel Lundevall Affärsansvarig 021-80 35 23 [email protected] Rymligt kontor med plats för flera arbetsstationer (4-22st)
Lagerdel med goda förvaringsmöjligheter.
Stor balkong för trivsamma kaffestunder. Ljus och attraktiv kontorslokal med flexibla lösningar. Daniel Lundevall

Hemlingby 49:30

Member for

5 years 2 months
Submitted by inv.adminuser on
1500.00 1500.00 Gävle Ingenjörsgatan 18 802 93 Nu ges möjlighet att hyra denna fastighet i populära Hemlingby. Stora öppna ytor som ger goda möjligheter att utforma lokalen efter era behov. Här har lokalen tidigare nyttjats både som kontor men även senast som bilhall. Gott om parkerings- och uppställningsytor på den inhägnade gården på baksidan av byggnaden. Möjlighet finns att anpassa lokalen efter verksamhetens behov.

Varmt välkomna att kontakta oss för mer information! Godkommunikation från centrala Gävle med kollektivtrafik. Från fastigheten har du dessutom 3 minuter till på- och avfart för E4 samt 5 minuter till påfart för E16. Hemlingby Handelsområde är ett stort område med många etablerade butiker. Här hittar ni bland annat butiker som ICA Maxi, Systembolaget, Biltema, Jula och många fler företag. 393801 GÄVLE-INGENJÖRSG 18_0367.png GÄVLE-INGENJÖRSG 18_0327.png Karta Hemlingby 49.30.png Fasad framsida.png Ingenjörsgatan 18 .png Ingenjörsgatan 18.png Industri/Verkstad Kontor Butik Lager/Logistik Alma Karlsson Affärsansvarig 026-10 53 84 [email protected] Planlösningen går att justera utefter behov från verksamheten. Fantastiskt besöksläge i Hemlingby! Alma Karlsson

Ingarvsbacken 1

Member for

5 years 2 months
Submitted by inv.adminuser on
500.00 1500.00 Falun Västermalmsvägen 2-4 791 77 Med beräknat tillträde vid under 2027 finns möjligheten att tillsamans med oss skapa er nästa lokal. En hyresgäst till grannlokalen inom segementet B2B/B2C finns redan kontrakterad och den yta som finns tillgänglig är mellan 500-1500 m2. Byggnaden kommer ligga granne med bla Ahlsell, XL-Bygg och Brandt Bil. Då byggnaden ännu inte är uppförd finns stora möjligheter att tillsammans med oss vara med att påverka både utformning och skick.

Läget erbjuder goda skyltmöjligheter mot Västermalmsvägen.

Kontakta oss gärna för mer information kring detta projekt. Ingarvet ligger ca 2 km från Falu Centrum och är lättillgängligt, oavsett om du kommer med bil eller buss. Fina gång- & cykelvägar finns att tillgå. På Ingarvet finns all tänkbar service i form av lunchrestauranger, dagligvaruhandel, B2B-handel etc. Samtidigt finns stadskärnan på promenadavstånd med allt den har att erbjuda. Fastigheten ligger i övre delen av Ingarvet. Stångtjärn med sina motionsspår och skidspår på vintern angränsar till Ingarvet. Närliggande fastigheter inhyser hyresgäster såsom Ahlsell, XL-Bygg, Cramo och Bevego. 393601 DJI_0198.png Industri/Verkstad Övrigt Butik Thomas Rapp Affärsansvarig 0243-130 77 [email protected] Se förslagsskisser. Väldigt flexibel utformning då byggnaden ej är uppförd ännu. Möjlighet att hyra lokal i helt nyproducerad byggnad på Ingarvet Thomas Rapp

Slakteriet 3

Member for

5 years 2 months
Submitted by inv.adminuser on
341.00 341.00 Västerås Slakterigatan 10 721 32 På Slakteriområdet kan du bli granne med närmare 100 andra hyresgäster från alla bransher. Från enmansföretag till medelstora företag inom IT, livsmedel, resturang, logistik, bygg, event, reklam mm. Vi skapar ett "centrum utanför centrum" en mötesplats där företagare kan känna sig hemma, med enkla kommunikationer runt om Västerås och utan parkeringskrångel. 393501 Fastighet.png Fastighet.png Kontor.png Wc.png Garage/ Verkstad.png Industri/Verkstad Kontor Övrigt Butik Lager/Logistik Daniel Lundevall Affärsansvarig 021-80 35 23 [email protected] Charmig lokal med ljusa kontor och verkstad/garage med egen port. Daniel Lundevall

Slakteriet 3

Member for

5 years 2 months
Submitted by inv.adminuser on
320.00 320.00 Västerås Slakterigatan 10 721 32 På Slakteriområdet kan du bli granne med närmare 100 andra hyresgäster från alla bransher. Från enmansföretag till medelstora företag inom IT, livsmedel, resturang, logistik, bygg, event, reklam mm. Vi skapar ett "centrum utanför centrum" en mötesplats där företagare kan känna sig hemma, med enkla kommunikationer runt om Västerås och utan parkeringskrångel. 393401 Fastighet.png Fastighet 2.png Ingång .png Lager .png Lager 2.png Dusch / WC.png WC/Dusch.png Planlösning.png Övrigt Lager/Logistik Daniel Lundevall Affärsansvarig 021-80 35 23 [email protected] Stor lageryta / garage samt pentry och WC Lageryta eller garage med bred port, kök samt dusch och WC i populära Slakteriet. Daniel Lundevall

Ingarvsbacken 2

Member for

5 years 2 months
Submitted by inv.adminuser on
1159.00 1159.00 Falun Västermalmsvägen 6 791 77 En bra lokal på Ingarvet i Falun lämplig för lättare industri, lager mm. Ingarvet ligger ca 2 km från Falu Centrum och är lättillgängligt om du åker med bil. Fina gång/cykelvägar finns att tillgå. Buss 14 trafikerar Ingarvet och hållplats finns i närheten av fastigheten. På Ingarvet finns all tänkbar service i form av lunchrestauranger, dagligvaruhandel, etc. Samtidigt finns stadskärnan på promenadavstånd med allt den har att erbjuda. Fastigheten ligger i övre delen av Ingarvet. Stångtjärn med sina motionsspår och skidspår på vintern angränsar till Ingarvet. Närliggande fastigheter inhyser hyresgäster såsom Ahlsell, Bilstjärnan och Cramo/Bevego. 393101 Ingarvsbacken 2_web_flyg_1 Industri/Verkstad Kontor Butik Lager/Logistik Thomas Rapp Affärsansvarig 0243-130 77 [email protected] Lager, butik och kontor Thomas Rapp
Subscribe to