Vävskeden 6

Member for

5 years 2 months
Submitted by inv.adminuser on
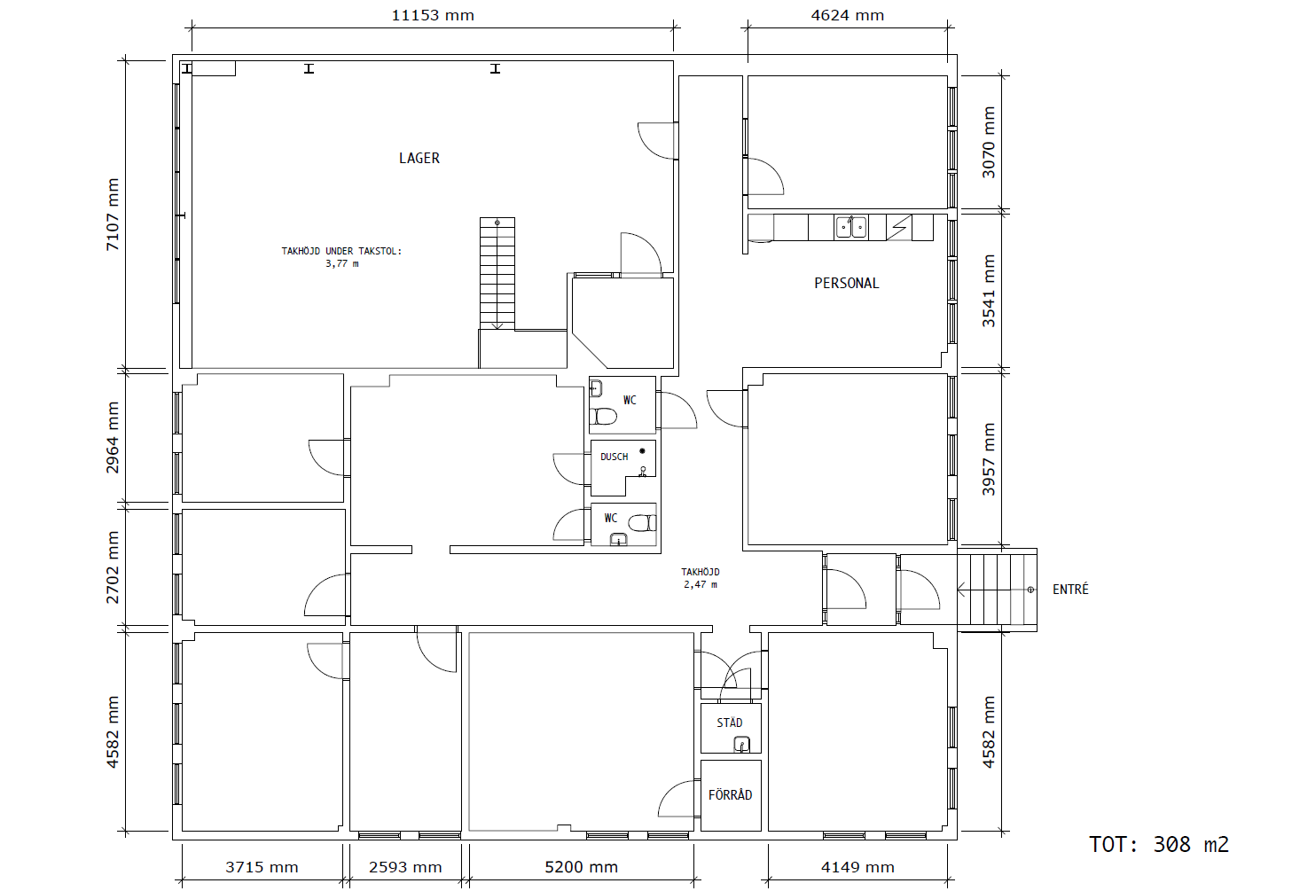
308.00 308.00 Sundsvall Norra vägen 34 856 50 Välkommen att hyra fina kontorslokaler om 308 kvm belägna i Bydalen, mellan Birsta och Sundsvalls centrum.
Här erbjuds trevliga kontorsrum samt personalutrymmen med omklädningsrum och dusch.
Garageplats finns även att hyra i anslutning till fastigheten. Flertalet livsmedelsbutiker och lunchrestauranger i närområdet. 94801 Exteriör.png Planritning med mått Planskiss 3D 1 Planlösning 3D 2 Fikarum Kontor1 KOntor 2 Lager Kontor 3 Kontor Övrigt Fastigheten är belägen i Bydalen med närhet till både Sundsvalls centrum och Birsta. I anslutning till lokalen finns tillgång till P-platser. För mer information om lokalerna eller visning av dem, välkommen att höra av er till oss. Matilda Rydstedt Affärsansvarig 060-7770316 [email protected] Trevliga kontorslokaler i fantastiskt skyltläge Matilda Rydstedt

Rälsbussen 5

Member for

5 years 2 months
Submitted by inv.adminuser on
270.00 620.00 Umeå Industrivägen 2 901 30 Ljus och modern lokal i "Granngården huset" med mycket bra och centrumnära läge på Västerslätt. Lokalen är perfekt för den medelstora företagaren som söker båda mindre kontorsrum, större rum lämpliga till öppet kontorslandskap och fina personalutrymmen med kök, samlingsytor och mycket mera. För ytterligare information, välkommen att kontakta Elias Persson, NP3 Fastigheter. Västerslätts industriområde är ett av Umeås äldre industriområde där man kan hitta vitt skilda verksamheter med allt från anrika Ullas kondis till handel och tung industri. Området ligger längs väg 363 och är lättillgängligt med både buss, bil och cykel. Västerslätt som idag består av allt från vad ett indusrtiområde kan tänkas husera till lugna och omtyckta villakvarter. På Västerslätts centrum finns bland annat livsmedelsbutik, konditori och bank. På området finns också lunchrestauranger, handel och mycket annat. Härifrån är det en kort tur in till Umeå centrum. Västerslätt ligger vid Umeås västra infart och tillhör ett av Umeås äldre och mest etablerade industriområden. Fastigheten ligger nära granne till Noliafälten och Umeå centrum. 88301 Fasadbild Rälsbussen 5.png Rälsbussen 5 Rälsbussen 5 Rälsbussen 5 Rälsbussen 5 Rälsbussen 5 Rälsbussen 5 Rälsbussen 5 Kontor Elias Persson Affärsansvarig 090127944 [email protected] Modern planlösning med fina kontorsytor och allmänna utrymmen. Lokaler med centralt läge på Västerslätt Elias Persson
Subscribe to