Hågesta 412

Member for

5 years 2 months
Submitted by inv.adminuser on
10.00 34.00 Sollefteå Hågesta 412 881 41 Industrifastighet med lokaler för kontorshotell, verkstad och butik. Kontorshotellet ligger på plan 1 trappa med tillgång till hiss. Städ ingår för de gemensamma delarna medan det egna rummet städas av hyresgästerna själva. Fiberanslutning till byggnaden och fastighetsnät finns installerat. Motorvärmare i nära anslutning till byggnaden. Bara att flytta in! 500 m till hållplats för lokalbussar. Fastigheten nås lätt med bil via Riksväg 90. På Hågesta finns förskola, boende, restaurang, matvarubutik, bad-/friskvårdsanläggning samt många fler verskamheter som underlättar Er etablering på området. Byggnaden ligger på Hågesta (fd I21 regemente) intill Riksväg 90 och området sjuder av liv med varierande typ av verksamhet. Sollefteå Kommun har idag ca 20.000 invånare varav knappt 8000 i tätorten. 15501 Hågesta 3:115 By 412 Sollefteå Hågesta 3:115 By 412 2 Sollefteå Hågesta 3:115 By 412 3 Sollefteå Hågesta 3:115 By 412 4 Sollefteå Hågesta 3:115 By 412 5 Sollefteå Kontor Löpande avtal med 6 månaders uppsägningstid underlättar då Er verksamhet växer. Leif Svensson Affärsansvarig 0620-519 04 [email protected] 10 st enskilda kontorsrum, i storlek mellan 10-34 kvm, delar kommunikationsytor, pausrum och wc. Samtliga rum ligger mot norr (mot Riksväg 90) vilket minimerar solinstrålningen/värmen på sommaren. Fullt utrustat kök med porslin, micro, diskmaskin och kaffemaskin. Kontorshotell med möjlighet för verksamheten att växa med kort avtalstid. Leif Svensson

Notviken 4:51

Member for

5 years 2 months
Submitted by inv.adminuser on
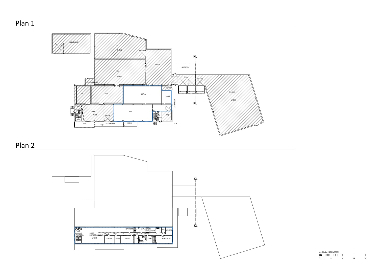
310.00 622.00 Luleå Banvägen 19 973 46 Lagerlokal med personalytor på övre plan. Lokalen ligger på ett bra läge i Notsviksstan.
Goda parkeringsmöjligheter finns, både för personbilar och lastbilar.
Möjlighet finns att anpassa lokalen efter verksamhetens behov. Bra med bussförbindelser med en närliggande hållplats efter Bodenvägen.
Notviken har tåghållplats.
Luleå Airport ligger 15 km från fastigheten. 17001 Exteriör 1.png Planritning.png Kontor Övrigt Lager/Logistik Henrik Forsberg Affärsansvarig 0920-450 777 [email protected] Lager på bottenplan, ca 312 kvm. Övre plan har kontor, fikarum och omklädningsrum med bastu, ca 310 kvm. Lagerlokal i bra läge Henrik Forsberg

Vivstamon 1:63

Member for

5 years 2 months
Submitted by inv.adminuser on
12.00 20.00 Timrå Terminalvägen 30 86136 Nu har vi lediga rum i vårat trevliga kontorshotell i två plan på Terminalvägen 30 i Timrå. Fastigheten ligger i ett bra område med många företag i olika branscher.

Välkommen att kontakta oss för mer information och visning! 53701 Entré Entré 2 Hiss Korridor Korridor2 Kontorsrum Kontorsrum2 Gemensamhetsutrymme Kontor Kontorshotell Parkeringsmöjligheter finns. Mats Andersson Affärsansvarig 060-777 03 09 [email protected] Lediga rum i trevligt kontorshotell Mats Andersson

Laven 2

Member for

5 years 2 months
Submitted by inv.adminuser on
372.00 372.00 Umeå Formvägen 16 906 21 Trevlig kontorlokal med öppna och ljusa ytor med bra läge på Ersboda. Här finns såväl kontorsrum som öppna kontorslandskap. Lokalerna ligger på trevligt område med närhet till det mesta som Ersboda och Mariedal har att erbjuda. För ytterligare information kontakta Elias Persson på NP3 Fastigheter. Dom allmänna kommunikationerna med lokaltrafiken till Ersboda och Stora Birks handelsområde är goda och lätta att nå. Från centrum är det kort bussresa till området. Kör du egen bil erbjuder butiken stora parkeringsytor. För den som väljer att gå eller cykla kan man lätt nå hit via cykel- och gångbanor. Vill man kan man ta sig en tur på området finns det trevliga fik och matställen med allt från pizza till husmanskost. På Ersboda som också är ett populärt bostadsområde finns bland annat stora sportfält, härliga grönområden, idrottshallar, livsmedelsbutiker, skolor och vårdcentraler. Stora Birks handelsområde ligger vid Umeås norra infart och är en Umeås ledande och mest kompletta handelsområde där man idag kan hitta det mesta som är värt att köpa. I grannskapet finns bland annat Leos lekland, Svenska Hem, Electrolux Home, Laitis och mycket annat. 60601 Laven 2_Umeå Kontor Elias Persson Affärsansvarig 090127944 [email protected] Öppen planlösning med öppna kontorslandskap, kontorsrum, konferensdel och rymliga personalutrymmen. Trevlig kontorslokal med öppen planlösning Elias Persson

Hågesta övr byggn

Member for

5 years 2 months
Submitted by inv.adminuser on
3000.00 3000.00 Sollefteå Hågesta 22 881 41 Vi har tagit fram en detaljplan med byggrätt för att kunna uppföra 3000 kvm byggnadsarea bostäder på expansiva Hågesta i Sollefteå. Byggnadshöjden är max 10 resp 18 m beroende på var inom detaljplanen den skall uppföras. Tomten ligger i nära anslutning till Ica Kvantum, Aquarena, MM och gymnasieskola. Nära hållplats för lokalbussar. Fastigheten nås lätt med bil via Riksväg 90. På Hågesta finns förskola, gymnasieskola, boende, restaurang, matvarubutik, bad-/friskvårdsanläggning samt många fler verskamheter som underlättar Er etablering på området. 74201 3D skiss Detaljplan Mark Övrigt Leif Svensson Affärsansvarig 0620-519 04 [email protected] Byggrätt bostäder! Leif Svensson

Nolby 7:142

Member for

5 years 2 months
Submitted by inv.adminuser on
405.00 405.00 Sundsvall Svartviksvägen 10-12 862 33 Fina lagerytor lämpliga för lättindustri, logistik, internethandel mm. Fikarum med pentry och WC. Fiber finns i fastigheten. Det finns möjlighet att sätta in flera portar med en maxhöjd på 4 m. Fastigheten ligger i direkt anslutning till gamla E4. Busshållplats utanför fastigheten. Flera lunchrestauranger i närområdet Svartviks industriområde, Kvissleby, Njurunda Bilel mm 58901 IMG_0829.png IMG_7959.png IMG_7957.png IMG_7958.png Industri/Verkstad Övrigt Lager/Logistik Fiber finns i fastigheten. Möjlighet att sätta in högport. Håkan Andersson Affärsansvarig 060-777 03 04 [email protected] Öppen planlösning med pelare. Se bifogad ritning. Lager- eller produktionsytor i bra logistikläge Håkan Andersson

Öjebyn 33:222

Member for

5 years 2 months
Submitted by inv.adminuser on
1100.00 2560.00 Piteå Hammarvägen 32 943 36 Lokaler för handel, lager, logistik och produktion mm uthyres på Öhns Industriområde. Lokaler kan delas i storlekar från ca 1 100 kvm och uppåt. Total uthyrningsbar yta ca 2 560 kvm. 57501 Exteriörbild 1.png Interiörbild 1.png Interiörbild 2.png Interiörbild 3.png Interiörbild 4.png Interiörbild 5.png Industri/Verkstad Butik Lager/Logistik Niclas Wikman Affärsansvarig 0911-184 94 [email protected] Lokaler för handel, lager, logistik och produktion Niclas Wikman
Subscribe to